GALLERY
PROPERTY DETAIL
Key Details
Sold Price $275,0002.7%
Property Type Mobile Home
Sub Type Mfg/Mobile Home
Listing Status Sold
Purchase Type For Sale
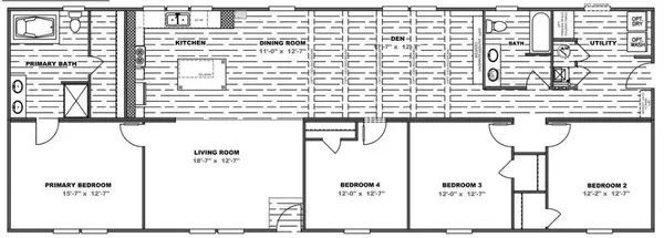
Square Footage 2, 001 sqft
Price per Sqft $137
MLS Listing ID 25023260
Sold Date 01/20/26
Bedrooms 4
Full Baths 2
HOA Y/N No
Year Built 2025
Lot Size 1.000 Acres
Acres 1.0
Property Sub-Type Mfg/Mobile Home
Location
State SC
County Berkeley
Area 75 - Cross, St.Stephen, Bonneau, Rural Berkeley Cty
Region None
City Region None
Rooms
Primary Bedroom Level Lower
Master Bedroom Lower Garden Tub/Shower, Walk-In Closet(s)
Building
Story 1
Foundation Crawl Space
Sewer Septic Tank
Water Well
Level or Stories One
Structure Type Vinyl Siding
New Construction Yes
Interior
Interior Features Kitchen Island, Walk-In Closet(s), Eat-in Kitchen, Family, Formal Living, Utility
Heating Central, Electric
Cooling Central Air
Flooring Carpet, Vinyl
Fireplaces Number 1
Fireplaces Type One
Laundry Electric Dryer Hookup, Washer Hookup
Exterior
Parking Features Off Street
Utilities Available Dominion Energy
Roof Type Asphalt
Schools
Elementary Schools Cross
Middle Schools Cross
High Schools Cross
Others
Acceptable Financing Cash, Conventional, FHA, USDA Loan, VA Loan
Listing Terms Cash, Conventional, FHA, USDA Loan, VA Loan
Financing Cash,Conventional,FHA,USDA Loan,VA Loan
SIMILAR HOMES FOR SALE
Check for similar Mobile Homes at price around $275,000 in Cross,SC

Pending
$239,900
131 Lizzie Ave, Cross, SC 29436
Listed by Mackenzie Crabtree Real Estate • Mackenzie Crabtree4 Beds 2 Baths 1,995 SqFt
Active
$250,000
120 Princess Ln, Cross, SC 29436
Listed by Keller Williams Parkway • Chemetris Eubanks3 Beds 2.5 Baths 2,324 SqFt
Pending
$299,000
232 Palace Dr, Cross, SC 29436
Listed by Carolina One Real Estate • Madeline Peele5 Beds 3 Baths 1,976 SqFt
CONTACT



